Appartement 4 pièces - 96.23 M2
Photos et visite 3D
Description du bien
Dans le quartier « Fallet », dans un immeuble de 5 étages datant de 1928, proche de la station "Asnières-sur-Seine".
Ascenseur. Digicode. La copropriété comprend 108 lots.
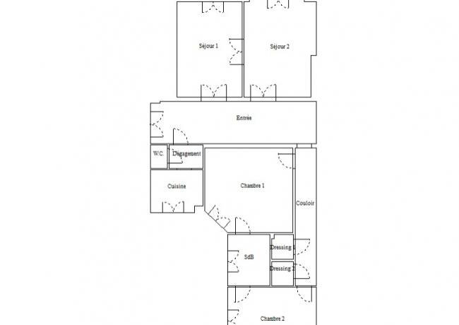
Au 4e étage : un appartement lumineux et traversant de type F4, comprenant vaste entrée, double séjour, dégagement, cuisine, deux chambres, dressings, salle de bains, wc. Travaux à prévoir.
Au sous-sol : cave
Renseignements : 01 39 89 04 46 (Maître Lenoir)
Charges annuelles de copropriété : 3 250 €
Diagnostic de performance énergétique (DPE)
Indice d'émission de gaz à effet de serre (GES)
Localisation et visite du bien
Adresse du bien
21
rue du chemin vert
92400
Courbevoie
Comment s'y rendre ?
Jour et horaire de visite
Les visites sont terminées, veuillez-prendre contact avec le service des ventes aux enchères 01 44 82 24 82.
Les visites prévues sont sur rendez-vous uniquement en cliquant sur "visiter le bien" 👇
Informations sur la vente
Pour ce bien, vous pouvez porter enchère également à distance !
Date et lieu de la vente
Séance de vente du 9 avril 2026
Lieu de la séance de vente
Chambre des Notaires de Paris
12 avenue Victoria - 75001 PARIS
Station CHATELET

Consignation
Jeudi 9 avril 2026 à 09:00
Consulter le cahier des charges et porter enchères
1. Connectez-vous afin de télécharger tous les documents nécessaires à la vente de ce bien.
2. Déposer votre candidature
- Si vous souhaitez enchérir EN SALLE, veuillez déposer votre candidature sur place 1 heure avant le début de la vente (avec la consignation).
- Si vous souhaitez enchérir à distance (TELEPHONE, INTERNET ou ORDRE), veuillez vous inscrire à l’une des dates de dépôt de candidature ci-dessous à contact.encheres@notantis.com ou au 01 44 82 24 82
Adresse du dépôt de candidature : NOTANTIS, 19 rue du renard 75004 PARIS
Vous souhaitez enchérir à distance ?
Contactez dès maintenant contact.encheres@notantis.com pour fixer un rendez-vous et déposer votre dossier de candidature.
Vous souhaitez enchérir en salle ?
Les dépôts de consignation pour porter enchère en salle sont ouverts le jour de la vente de 09h00 à 09h55
Notaire & étude
Maître Cédric LENOIR
Etude
LENOIR - 116 Rue du Général Leclerc 95410 Groslay
Vente bougie
Informations pratiques
Demande d'informations
Vous avez des questions à propos de ce bien ?
Appelez-nous ou envoyez-nous un message et nous vous recontacterons